Продам дом, коттедж 139.6 м.кв.

на карте
Просмотров 2
24 428 000 руб.
Дмитров , село Озерецкое, Воздвиженская улица, д.6к2
Отдел продаж
Показать телефон
Данные актуальны на 02.02.2026
Пожаловаться на объявление
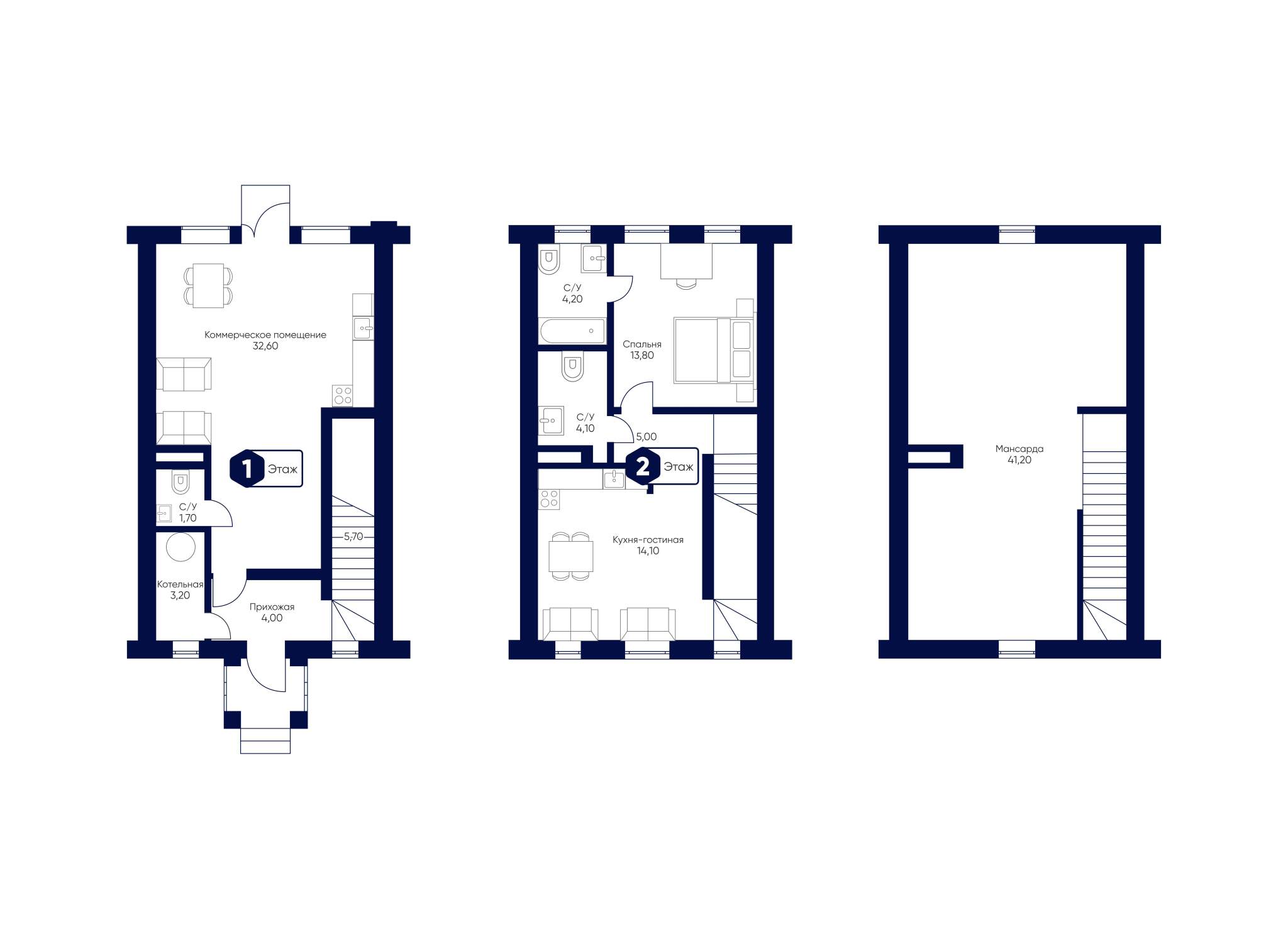
Рассрочка 0% на 2 года от застройщика! Продается таунхаус в квартале «Тюльпанов» жилого комплекса «Мечта». ОСНОВНЫЕ ХАРАКТЕРИСТИКИ - Общая площадь: 139.6 м - Площадь участка: 0.80 сот. - 3 этажа - 1 спальня - 3 туалетных комнаты - Высота потолка: 2.7 метра - Мансарда: 41.2 м - Коммерческое помещение на 1 этаже - 2 парковочных места - Отделка: Получистовая Коттеджный посёлок «Мечта» находится всего в 23 км от МКАД по Дмитровскому или Ленинградскому шоссе. Дорога до Москвы на автомобиле займёт 30 минут. Также можно воспользоваться общественным транспортом: автобусы ходят по расписанию, поэтому не придётся переживать из-за опозданий и задержек. До МЦД-1 «Лобня» - 15-20 минут, до станции метро «Физтех» - 30-35 минут на общественном транспорте. Инфраструктура включает в себя муниципальную школу и детские сады, кабинет врача общей практики, множество кафе и ресторанов, а также различные спортивные и детские площадки. В пешей доступности от посёлка расположены лес и три реликтовых озера - Долгое, Круглое и Нерское, а также реки Альба, Уча и Волгуша. Территория посёлка закрыта для посторонних, находится под охраной и патрулируется. На въезде расположен КПП. Камеры видеонаблюдения работают круглосуточно на всей территории посёлка. Вы и ваши дети будете чувствовать себя в безопасности.

Параметры здания

Тип дома Блочный Год постройки - Количество этажей 3 Туалет - Отопление - Возможность прописки -
Электричество - Газ - Вода - Канализация - Гараж -

Параметры объекта

Количество комнат 3 Покрытие пола - Телефон - Интернет -
Мебель - Бытовая техника - Кондиционер -

Параметры продажи

Тип продажи - Торг -
Ипотека -

Параметры участка

Площадь участка 80 м.кв.
Объекты, находящиеся поблизости
Банки, банкоматы
ПАО Сбербанк 493м
Магазины
ВкусВилл 295м
Дикси 341м
Мартин 493м
Магнит 503м
Столовые, кафе
Фирдуси 143м
Динамика изменения цен на рынке недвижимости ?

За последние полгода средняя сумма за кв.м. выросла на 3069 руб. Колебание цен происходило от 120103 руб. до 123172 руб. На текущий момент наблюдается тенденция к росту цены.
Похожие объявления
Обновлено
04.02.2026
Фотографии
10
Объявление 5017903
Дмитров, село Озерецкое, Воздвиженская улица, д.1к3
24 560 000
руб. Продажа
142.2 м2
Обновлено
04.02.2026
Фотографии
18
Объявление 4994596
Дмитров, село Озерецкое, Радости бульвар, д.20
29 345 000
руб. Продажа
153.2 м2
Обновлено
04.02.2026
Фотографии
10
Объявление 4762148
Дмитров, село Озерецкое, Радости бульвар, д.2
22 264 000
руб. Продажа
146.2 м2
Обновлено
03.02.2026
Фотографии
10
Объявление 5017881
Дмитров, село Озерецкое, Воздвиженская улица, д.1к2
24 560 000
руб. Продажа
146.2 м2
Обновлено
03.02.2026
Фотографии
11
Объявление 4761915
Дмитров, село Озерецкое, Воздвиженская улица, д.8к2
26 538 000
руб. Продажа
146.2 м2
Обновлено
03.02.2026
Фотографии
11
Объявление 4994532
Дмитров, село Озерецкое, Воздвиженская улица, д.1к4
27 711 000
руб. Продажа
146.2 м2
Обновлено
03.02.2026
Фотографии
10
Объявление 5017880
Дмитров, село Озерецкое, Воздвиженская улица, д.1к5
27 711 000
руб. Продажа
142.2 м2
Обновлено
03.02.2026
Фотографии
10
Объявление 4964673
Дмитров, деревня Щепино, объединения Защепино территория, д.32а
31 000 000
руб. Продажа
140 м2
Обновлено
03.02.2026
Фотографии
10
Объявление 4960314
Дмитров, деревня Щепино, объединения Защепино территория, д.32а
30 000 000
руб. Продажа
140 м2
Обновлено
03.02.2026
Фотографии
15
Объявление 5018481
Дмитров, село Озерецкое, Радости бульвар, д.20
28 056 000
руб. Продажа
153.2 м2
Вход в личный кабинет